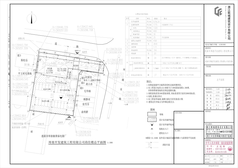
慈溪市周巷开发建筑工程有限公司商住楼项目规划批前公示
发布:2022-05-17慈溪房产网编辑:孙静
慈溪市周巷开发建筑工程有限公司商住楼项目规划批前公示
(周建示(2022)第033号)
慈溪市周巷开发建筑工程有限公司拟申请办理商住楼项目方案变更、建设工程规划许可证变更手续,建设地点:周巷镇环城东路136号。公示时间自2022年5月17日起十日内,如对该方案有意见、建议,请在公示期间来电或来信到市自然资源和规划局周巷分局。涉及重大利害关系的,利害关系人如需申请听证,请在公示结束前向我局提出申请,听证申请人须提供姓名、住址、电话号码、身份证号码、签名及证明利害关系等事项的书面材料。若无异议,我局将依申请办理建设工程规划许可证。联系电话:63720223、63721218,(上午8:15-11:15,下午1:30-4:30,节假日除外)。来信请寄:周巷镇环城北路428号223,邮编:315324。
慈溪市自然资源和规划局
二〇二二年五月十六日
来源:http://www.cixi.gov.cn/art/2022/5/17/art_1229041798_3976905.html
热门资讯
热门楼盘







