规划批前公示(周建示(2023)第09号)
发布:2023-05-15慈溪房产网编辑:孙静
规划批前公示(周建示(2023)第09号)
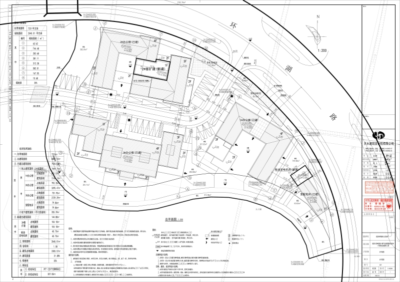
慈溪市周巷镇人民政府拟申请办理慈溪小家电智造小镇产业创新服务综合体一号地块改造提升工程项目方案审查、建设工程规划许可证手续,建设地点:周巷镇万安庄村,环湖路南侧。公示时间自2023年5月12日起十日内,如对该方案有意见、建议,请在公示期间来电或来信到慈溪市周巷自然资源所。涉及重大利害关系的,利害关系人如需申请听证,请在公示结束前向我局提出申请,听证申请人须提供姓名、住址、电话号码、身份证号码、签名及证明利害关系等事项的书面材料。若无异议,我局将依申请办理相关手续。联系电话:63720223、63721218,(上午8:15-11:15,下午2:00-5:00,节假日除外)。来信请寄:周巷镇环城北路428号223,邮编:315324。
慈溪市自然资源和规划局
二〇二三年五月十一日
热门资讯
热门楼盘







