泊誉大平层 272平带三个车位498万
2026-03-27
售价
498万
18308元/m²13306743900
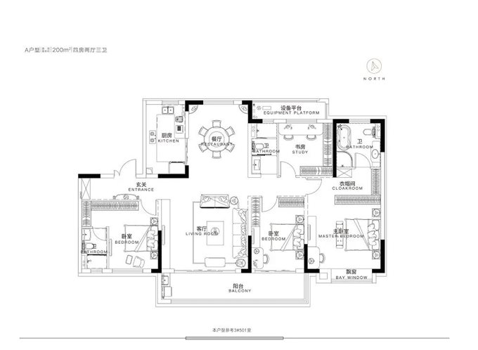
272m²
毛坯五室二厅三卫
中层/共11层南
普通住宅车位
城区
房 屋 亮 点
南北通透
房源核验码
202409233302820013
房源编号
8298347
- 中介:
- 电话:
13306743900
- 地址:
孙塘北路1194号(保集府楼下)
- 联系:
王亚娟
- 从业编号:
330282000351






