泊誉里 洋房大平层194平 380万
2026-03-27
售价
380万
19587元/m²13306743900
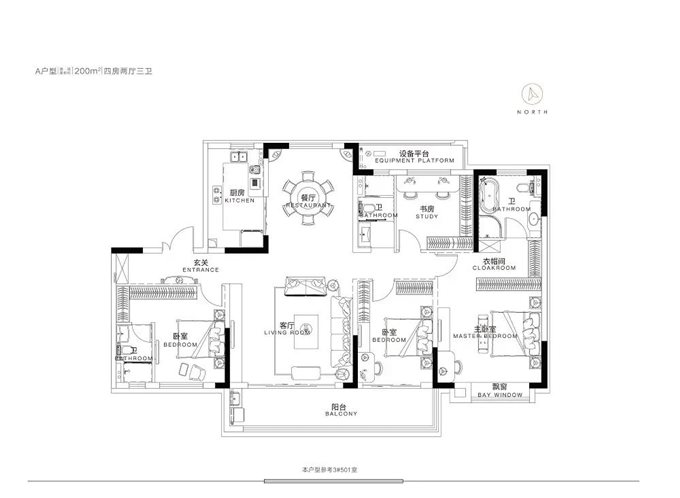
194m²
毛坯四室二厅三卫
中层/共11层南
普通住宅无
城区
房 屋 亮 点
南北通透
房源核验码
202411253302820010 √
房源编号
8211862
- 中介:
- 电话:
13306743900
- 地址:
孙塘北路1194号(保集府楼下)
- 联系:
王亚娟
- 从业编号:
330282000351






